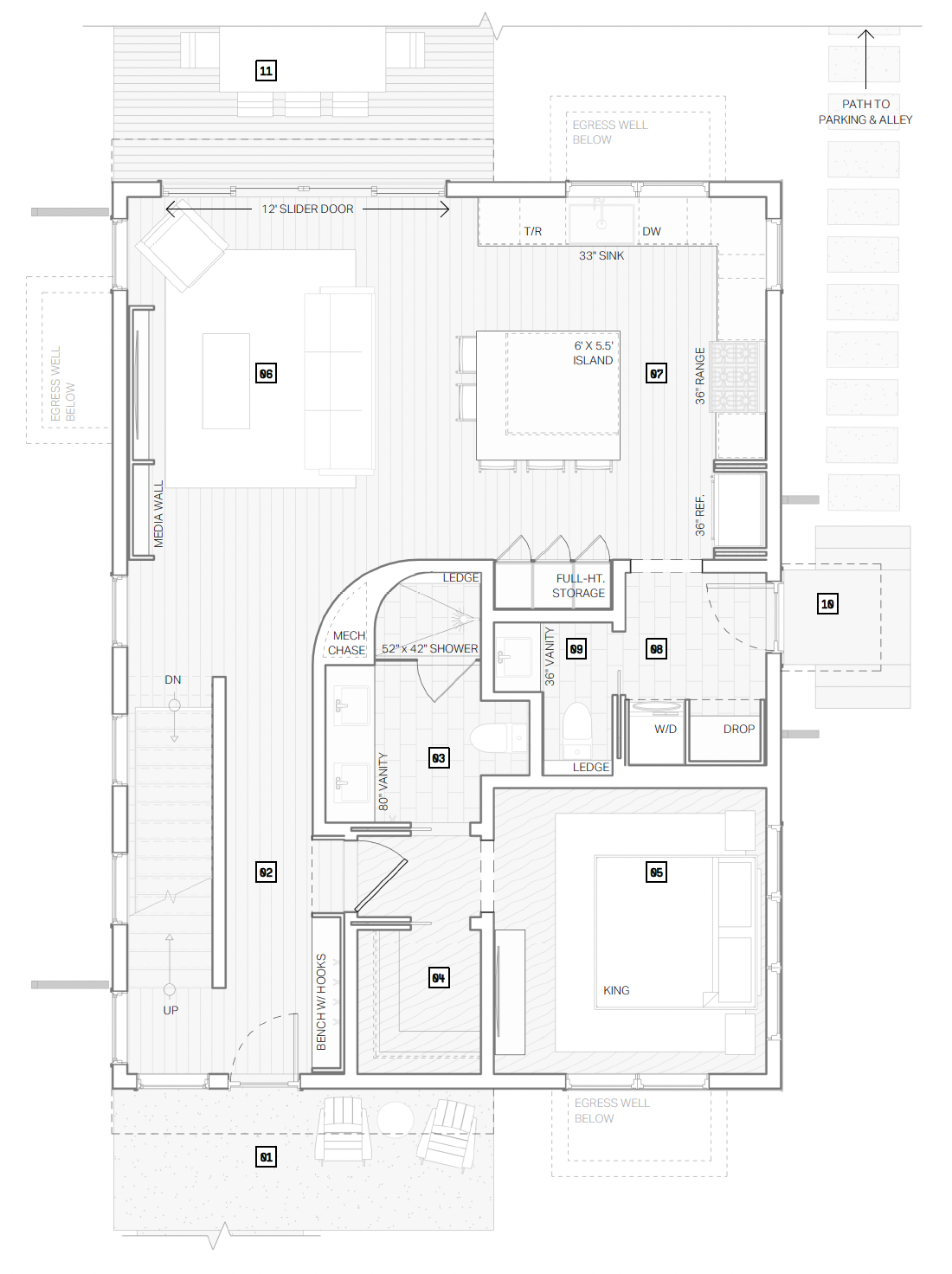
An exceptional opportunity awaits in the sought-after Linden Hills neighborhood of southwest Minneapolis. Just steps from Bde Maka Ska, Lake Harriet, Minikahda Golf Course, and vibrant local shops and restaurants, this location perfectly balances tranquility and urban convenience.


This West Coast Modern home combines elegance and sustainability, featuring clean architectural lines, superior insulation, and triple-pane windows for a serene, energy-efficient living space that redefines modern comfort and environmental stewardship.
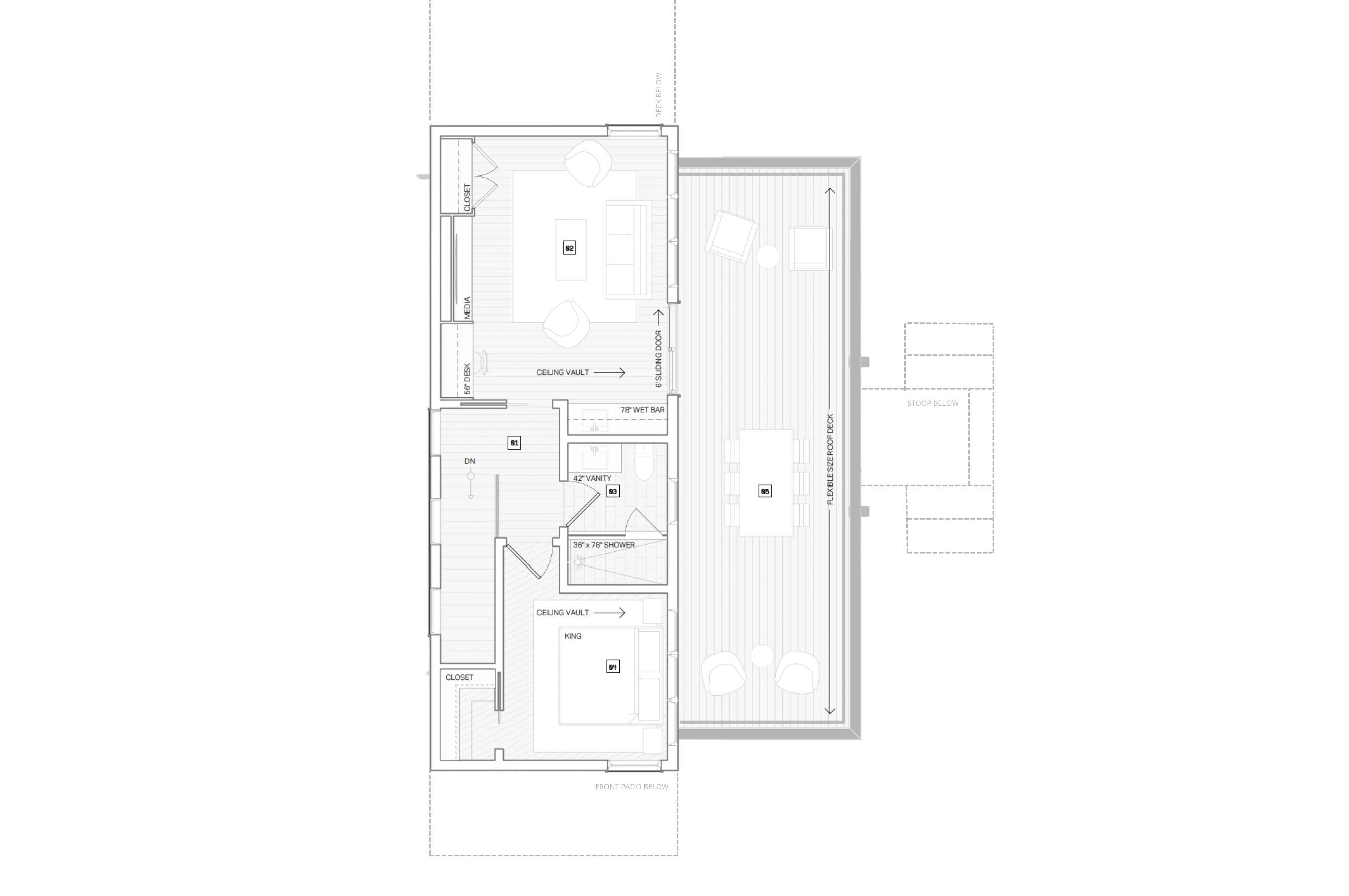
Enjoy seamless indoor-outdoor living with a spacious backyard patio, a chic wet bar, and a rooftop deck perfect for sunset views.




We have a passion for creating modern homes that not only look stunning but are environmentally-friendly to help reduce your home’s carbon footprint.
Energy Star
EPA Indoor AirPlus
DOE Zero Energy Ready Home
